Pläne digitalisieren.

Von Papier auf CAD | Masshaltige Pläne | 2D oder 3D Digitalisierung

Alte Pläne? Kein Problem.

Baupläne digitalisieren – präzise, professionell & normgerecht

Vergilbte Papierpläne, PDFs oder Bestandsunterlagen sind heute im Planungs- und Baualltag sowie in der Vermarktung nicht mehr zeitgemäss. Wir digitalisieren Ihre bestehenden Pläne manuell und masshaltig in digitale Formate (PDF, JPG, DWG/DXF).

Masshaltige CAD-Pläne

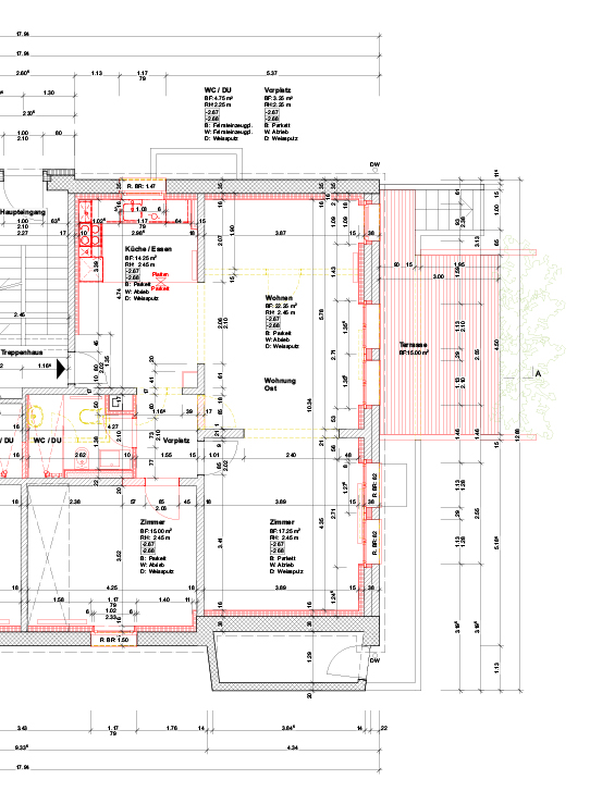
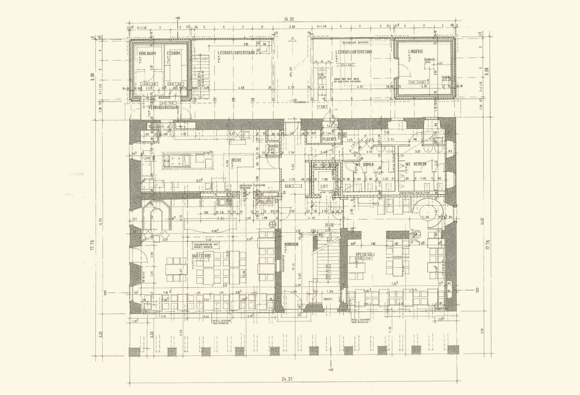
Jeder Plan wird manuell und masshaltig neu gezeichnet. Keine fehleranfälligen Automatismen, sondern präzise CAD-Pläne als verlässliche Grundlage.

Perfekte Basis für Projekte

Ideal für Umbauten, Sanierungen, Verkaufsunterlagen oder Bewilligungsverfahren. Sauber digitalisierte Pläne sparen später Zeit und Diskussionen.

Plausibilitätsprüfung inklusive

Alle vorhandenen Pläne werden beim Nachzeichnen fachlich geprüft. Unstimmigkeiten weisen wir transparent aus.

Zeitgemässe Pläne für Ihre Liegenschaften

Digitalisierter Plan Bestandsplan Digitalisierter Plan

Offerte und Beratung

Privatkunden, Architekten und Immobilienfachleute profitieren von einem speditiven Service, hoher Planungsqualität und fairen Preisen. Senden Sie uns Ihre Angaben für eine kostenlose Beratung und Offerte.

1 Auftragsdetails
2 Projektangaben
3 Kontaktdaten

Schritt 1: Auftragsdetails

Hauptleistung *

Zusatzdienste (optional)

Pläne digitalisieren Schweiz

Flexibel weiterverwendbar

Übergabe in DWG/DXF (CAD-kompatibel) oder als PDF, JPG oder TIFF.

Auch 3D-Digitalisierung möglich

Für fortschrittliche Digitalisierung erstellen wir auf Wunsch BIM-taugliche 3D-Modelle.

Moderne Planung

Klare, strukturierte CAD-Pläne sind die Basis für jedes Umbauprojekt.

3D Modell für BIM

Vom statischen Plan zum intelligenten Gebäudemodell

3D-Digitalisierung & BIM: Die Zukunft Ihrer Bestandsdaten

Mit unserer 3D-Digitalisierung heben wir Ihre Immobilien auf das nächste Level. Wir erstellen präzise, massstabsgetreue und interaktive 3D-Modelle als Visualisierung und BIM-Grundlage.

  • - Strukturierte 3D-Modelle aus CAD-Plänen
  • - Anschlussfähig für weitere Planungsphasen
  • - Saubere Basis für Visualisierung & BIM

Wir können noch mehr

CAD-Planung für Bauprojekte oder Dokumentation bei Vermietung oder Verkauf

Unser Architekturstudio erstellt Pläne jeder Art: für Umbau- oder Neubauprojekte, für Dokumentation, für Vermietungs- und STOWE-Pläne.

Vermietung

Vermarktung

Vermietung

Stockwerkeigentum

Verkauf

Stockwerkeigentum

Baueingabe

Bauplanung

Baueingabe

Ausführung

Bauplanung

Ausführung

Häufig gestellte Fragen zur Plandigitalisierung

Was bietet Plan-Digitalisierung.ch?
Das Hauptaugenmerk des Dienstes liegt auf der präzisen Vektorisierung von Bau- und Architekturplänen. Anstatt alte Pläne lediglich zu archivieren oder simpel einzuscannen (Rastergrafik), werden diese von erfahrenen Architekten und Hochbauzeichnern fachgerecht neu aufgebaut. Mit spezialisierter Software erfolgt eine manuelle Überführung in hochwertige, editierbare CAD-Formate (wie DWG oder DXF).

Unser erweitertes Leistungsangebot umfasst:
  • Präzises Nachzeichnen & Vektorisieren: Wir wandeln Ihre Papierpläne, Handskizzen oder statischen PDFs in intelligente, bearbeitbare CAD-Dateien um. Dabei werden Linien, Texte und Symbole in sauberen Layern strukturiert.
  • Garantierte Masshaltigkeit: Wir führen eine Plausibilitätsprüfung der Masse durch. So stellen wir sicher, dass die digitalen Pläne exakt den realen Gegebenheiten entsprechen – die unverzichtbare Basis für jede fehlerfreie Umbau-, Sanierungs- oder Erweiterungsplanung.
  • 3D-Modellierung & BIM-Ready: Auf Wunsch transformieren wir Ihre 2D-Grundlagen in moderne 3D-Modelle. Wir bereiten Ihre Daten so auf, dass sie vollumfänglich für BIM (Building Information Modeling) nutzbar sind, inklusive hinterlegter Bauteilinformationen.
  • Optimierung für die Bewirtschaftung: Unsere digitalen Pläne sind so aufbereitet, dass sie direkt im Facility Management eingesetzt werden können – etwa zur exakten Flächenberechnung für Mietverträge oder Reinigungsmanagement.
  • Langzeit-Archivierung & Revisionssicherheit: Durch die Digitalisierung schützen Sie wertvolles Bauwissen vor physischem Verfall. Sie erhalten eine geordnete, digitale Datengrundlage, die den Marktwert Ihrer Immobilie steigert und die Zusammenarbeit mit Fachplanern (Statik, HLKS, Elektro) massiv vereinfacht.
Warum ist die Digitalisierung von Plänen wichtig?
Alte Papierpläne sind oft unhandlich, nutzen sich ab und lassen sich nicht bearbeiten. Durch die Plandigitalisierung profitieren Kunden von entscheidenden Vorteilen:
  1. Zeitersparnis: Architekten und Fachplaner müssen Bestandsdaten nicht mühsam neu erfassen, sondern können direkt mit der Planung anstehenden Umbauten oder Sanierungen beginnen.
  2. Vermarktung und Bewirtschaftung (Facility Management): Für Immobilienbesitzer sind digitale Pläne ein wertvolles Asset. Sie dienen als Basis für hochwertige Verkaufs-Exposés (z. B. 3D-Visualisierungen) und sind essenziell für das Facility Management, um Wartungsintervalle oder Reinigungsflächen effizient zu berechnen.
  3. Rechtssicherheit und Archivierung: Papier zerfällt, verblasst oder kann durch Wasser und Feuer zerstört werden. Digitale Kopien, die mehrfach gesichert sind (Backups), garantieren den langfristigen Erhalt des Wissens über ein Gebäude und bieten Rechtssicherheit bei Dokumentationspflichten.
  4. BIM-Fähigkeit: Die Digitalisierung ist die Grundvoraussetzung, um bestehende Gebäude in den BIM-Workflow zu integrieren. Nur mit vektorbasierten Daten können "intelligente" Gebäudemodelle erstellt werden, die Informationen über Materialien, Brandschutz oder Leitungsführungen zentral speichern.
  5. Verbesserte Zusammenarbeit (Collaboration): Digitale Pläne können simultan von verschiedenen Fachplanern (Statik, HLKS, Elektro) genutzt werden. Änderungen sind sofort für alle Beteiligten sichtbar, was die Fehlerquote durch veraltete Planstände massiv senkt.
In welchen Dateiformaten erhalte ich meine digitalen Pläne?
Standardmässig liefern wir die Pläne als DWG und DXF (für CAD-Systeme) sowie als PDF oder JPG bzw. TIFF. Auf Anfrage stellen wir Ihnen die Daten auch in Formaten wie IFC (für BIM-Anwendungen) oder speziellen Formaten für ArchiCAD oder Vectorworks (optimiertes DWG) zur Verfügung.
Was ist der Unterschied zwischen einem Scan und einer CAD-Vektorisierung?
Ein Scan ist lediglich ein digitales Foto (Rasterbild), das man nicht wie eine technische Zeichnung bearbeiten kann. Bei unserer CAD-Vektorisierung wird jede Linie, jedes Symbol und jeder Text manuell neu erstellt. Nur so entstehen "intelligente" Daten, bei denen Sie beispielsweise Wände verschieben oder Flächen präzise berechnen können.
Warum eine Nachzeichnung der Pläne?
Automatische Vektorisierungstools (OCR/Batch-Konvertierung) stossen schnell an ihre Grenzen: Sie übernehmen häufig falsche Masse, interpretieren Flecken auf alten Plänen als Linien und liefern unbrauchbare Layer- oder Symbolstrukturen. Solche Dateien müssen oft so mühsam nachbearbeitet werden, dass der Zeitvorteil verloren geht.

Deshalb werden bei uns alle Pläne manuell im CAD neu aufgebaut. Dieser Prozess bietet entscheidende Vorteile:
  • Plausibilitätsprüfung: Unsere Fachkräfte erkennen logische Fehler im alten Plan (z. B. Massketten, die nicht aufgehen) und korrigieren diese während der Neuzeichnung.
  • Intelligente Layer-Struktur: Wir strukturieren die Datei nach gängigen Standards (z. B. nach SIA-Normen). Wände, Fenster, Türen und Beschriftungen liegen auf separaten Ebenen, was die Weiterbearbeitung durch Architekten oder Fachplaner massiv erleichtert.
  • Optimierung & Bereinigung: Wir entfernen veraltete Informationen und liefern Ihnen eine "saubere" Datengrundlage, die frei von grafischem Ballast ist.
  • Normgerechte Basis: Besonders für rechtlich relevante Dokumente wie Vermietungspläne oder Aufteilungspläne für Stockwerkeigentumsbegründungen (StWE) bildet die manuelle Neuzeichnung die einzige verlässliche Grundlage für exakte Flächenberechnungen.
Das Ergebnis ist nicht nur ein digitales Bild, sondern ein echtes Werkzeug, das nahtlos in moderne Bauprojekte und Bewirtschaftungsprozesse integriert werden kann.
Was ist eine DWG-Datei und warum ist sie wichtig?
DWG steht für „DraWinG“ (Zeichnung) und bezeichnet das weltweit am häufigsten verwendete Dateiformat für digitale CAD-Zeichnungen. Im Gegensatz zu PDF- oder Scan-Dateien ist eine DWG-Datei eine digitale Vektorgrafik, die alle Zeichnungsinformationen präzise speichert und in einer intelligenten Layer-Struktur organisiert ist. Das bedeutet:
  • Intelligenz durch Vektoren: Die Datei speichert Informationen nicht als Bildpunkte (Pixel), sondern als Linien, Kreise und Bögen mit exakten mathematischen Koordinaten.
  • Strukturierte Layer (Ebenen): Ein entscheidender Vorteil unserer Digitalisierung ist der Aufbau in Layern. Stellen Sie sich dies wie verschiedene Klarsichtfolien vor, die übereinanderliegen:
    • Wände, Fenster, Türen, Bemassungen und Beschriftungen liegen jeweils auf eigenen, separat steuerbaren Ebenen.
    • Dies ermöglicht es Fachplanern, bestimmte Informationen (z. B. nur die Rohbauwände) ein- oder auszublenden, was die Übersichtlichkeit und Weiterbearbeitung massiv verbessert.
  • Volle Bearbeitbarkeit: Architekten, Ingenieure und Fachplaner können die Datei direkt in ihrer Software (z. B. ArchiCAD, Revit oder AutoCAD) öffnen, verändern und darauf ihre eigenen Planungen aufbauen.
  • Höchste Präzision: In einer DWG-Datei können Masse auf den Millimeter genau abgegriffen werden. Das eliminiert die Ungenauigkeiten eines herkömmlichen PDF-Scans, bei dem Linien oft "verschwimmen".
  • Kompatibilität: DWG ist der globale Industriestandard. Er garantiert einen reibungslosen und verlustfreien Datenaustausch zwischen allen am Bau beteiligten Parteien.
Können Änderungen oder Varianten erstellt werden?
Ja, Anpassungen und Weiterbearbeitungen Ihrer Pläne sind jederzeit möglich. Wir bieten einen umfassenden CAD-Service an und können beispielsweise für Umbauprojekte die Baueingabe- und Ausführungspläne erstellen. Auch die Erstellung von Vermietungs- bzw. Verkaufsplänen oder von Aufteilungsplänen bei Stockwerkeigentumsbegründungen sind kein Problem. Unsere Fixpreise sind konkurrenzfähig und transparent.
Wie hoch sind die Preise für das Digitalisieren von Plänen?
Die Kosten für eine professionelle Plandigitalisierung sind so individuell wie das Bauprojekt selbst. Sie richten sich primär nach der Anzahl der Pläne, der Komplexität der Architektur und dem gewünschten Detaillierungsgrad.
Um Ihnen eine Orientierung zu geben, arbeiten wir mit Richtwerten und Pauschalangeboten:
  • Pauschalangebot Einfamilienhaus (Richtwert): Für ein typisches Einfamilienhaus (ca. 3 Geschosse, Grundriss ca. 10 x 10 m) bieten wir ein Komplettpaket an. Dies umfasst die Digitalisierung aller drei Grundrisse, vier Ansichten und einen Schnitt als strukturierte CAD-Datei zum Pauschalpreis von CHF 2'400 (exkl. MwSt.).
  • Einzelleistungen & Kleinaufträge: Wir digitalisieren auch einzelne Dokumente wie Grundrisse, Fassaden oder Detailschnitte. Hier starten die Preise je nach Vorlage (z. B. einfacher orthogonaler Grundriss) bereits bei niedrigeren Pauschalen.
  • Faktoren, die den Preis beeinflussen:
    • Objektgrösse und Fläche: Die Dimensionen der Liegenschaft (m² Grundfläche) sowie die Anzahl der Geschosse sind massgebend. Ein weitläufiges Industrieareal oder ein Mehrfamilienhaus erfordert naturgemäss eine umfassendere Bearbeitung als ein kompaktes Einfamilienhaus.
    • Informationsdichte: Ein hochdetaillierter Ausführungsplan mit vielen Koten, Installationen und Materialangaben ist aufwendiger in der Vektorisierung als eine grobe Skizze oder ein einfacher Entwurfsplan.
    • Zustand der Vorlage: Gut lesbare, digitale PDFs lassen sich effizienter bearbeiten als verblasste, handgezeichnete oder beschädigte Papierpläne aus dem Archiv, die eine intensive fachliche Interpretation benötigen.
    • 2D vs. 3D: Die Erstellung eines intelligenten, BIM-fähigen 3D-Modells erfordert einen höheren Zeitaufwand und eine komplexere Datenstruktur als eine reine 2D-Vektorisierung der Grundrisse und Schnitte.
  • Kostenlose Offerte: Da jedes Gebäude einzigartig ist, empfehlen wir Ihnen eine individuelle Offerte. Senden Sie uns dazu einfach ein Foto oder ein Scan-PDF Ihrer Pläne zu. Sie erhalten innerhalb von 24–48 Stunden ein Angebot – kostenlos und unverbindlich.
Wie schnell erhalte ich die CAD-Pläne?
Die Lieferzeit hängt vom Umfang und der Komplexität Ihrer Vorlagen ab. In der Regel gelten folgende Richtwerte:
  • Kleinere Aufträge (1–3 Pläne): Meist innerhalb von 2 bis 5 Werktagen.
  • Mittlere Projekte (Einfamilienhäuser/Wohnungen): Circa 5 bis 10 Werktage.
  • Grossaufträge & Überbauungen: Nach individueller Terminabsprache.
  • Express-Service: Für dringende Termine bieten wir auf Anfrage eine priorisierte Bearbeitung an (z. B. 24h- oder 48h-Service). Kontaktieren Sie uns hierfür bitte direkt, um die Kapazitäten zu prüfen.
Was passiert mit meinen Original-Papierplänen nach der Digitalisierung?
Sie haben die Wahl: Wir senden Ihnen Ihre Originale nach Abschluss des Auftrags sicher per Post zurück. Alternativ bieten wir eine fachgerechte und datenschutzkonforme Vernichtung Ihrer alten Papierunterlagen an, falls Sie Platz in Ihrem Archiv schaffen möchten.
Was ist der Unterschied zwischen einem 2D-Plan und einem 3D-BIM-Modell?
Während ein 2D-Plan Linien und Flächen flach darstellt, ist ein 3D-BIM-Modell ein „digitaler Zwilling“. Jedes Bauteil (Wand, Fenster, Tür) ist als intelligentes Objekt hinterlegt. Das bedeutet, das Modell enthält nicht nur Geometrie, sondern auch Informationen über Materialien, Schichtstärken oder technische Eigenschaften.

Welche Vorteile bietet ein 3D-Modell für Umbau- und Sanierungsprojekte?

Ein 3D-Modell ermöglicht eine automatische Kollisionsprüfung. Bevor der erste Handwerker die Baustelle betritt, können wir digital prüfen, ob geplante Leitungen oder neue Bauteile mit der bestehenden Tragstruktur kollidieren. Das minimiert teure Fehlplanungen und Verzögerungen während der Ausführung massiv.

Kann ich das 3D-Modell für Visualisierungen nutzen?

Ja, absolut. Unsere Modelle sind die perfekte Grundlage für fotorealistische Renderings oder virtuelle Rundgänge. Das ist besonders wertvoll für die Vermarktung von Immobilien und dafür, Bauherren bereits in der Planungsphase ein realistisches Raumgefühl zu vermitteln.

Wie unterstützt 3D-Digitalisierung die Mengen- und Kostenermittlung?

Da im 3D-Modell alle Volumina exakt erfasst sind, lassen sich Mengen (z.B. m³ Beton, m² Bodenbelag oder lfm Leitungen) auf Knopfdruck präzise auswerten. Dies führt zu einer deutlich höheren Kostensicherheit bei Ausschreibungen und Materialbestellungen.

In welchen Dateiformaten werden die 3D-Daten geliefert?

Wir liefern die Daten in gängigen BIM- und CAD-Formaten wie IFC (offener Standard für BIM), DWG/DXF (3D) oder direkt als native Dateien für Softwarelösungen wie ArchiCAD. So ist eine nahtlose Weiterbearbeitung durch Ihre Fachplaner garantiert.

Ist eine 3D-Digitalisierung auch für ältere Bestandsbauten sinnvoll?

Gerade bei komplexen Altbauten lohnt sich der Schritt in die dritte Dimension. Oft sind hier Wandverläufe oder Deckenhöhen unregelmässig. Ein 3D-Modell macht diese Komplexität beherrschbar und dient als verlässliche „Single Source of Truth“ für alle am Projekt beteiligten Parteien.
Wie sicher sind meine Daten bei Plan-Digitalisierung.ch?
Diskretion und Datensicherheit haben oberste Priorität. Wir behandeln alle Pläne streng vertraulich. Als Schweizer Dienstleister unterliegen wir dem revidierten Schweizer Datenschutzgesetz (revDSG). Auf Wunsch unterzeichnen wir gerne eine individuelle Vertraulichkeitserklärung (NDA).

CAD Rundum-Service

Wir sind seit vielen Jahren als Architekturstudio in der Schweiz tätig und spezialisiert auf die Auslagerung von Bau- und Planungsleistungen. Wir begleiten Sie als verlässlicher Partner durch Ihr Projekt - von der vollständigen Architekturplanung bis hin zur Übernahme einzelner Leistungsphasen oder punktueller Aufgaben, wie die Plandigitalisierung.

031 311 44 55